Birla Vanya is a latest residential project by Birla Estates in Kalyan West, Thane. It consists of apartments in 1, 2 & 4 BHK configurations.
Every apartment is Vaastu compliant. The apartment have been consciously sized for convenient family living, the room dimensions are sensible and designed to maximize usable area while minimizing circulation space.
The towers and apartments in Birla Vanya are designed intentionally so that every home owners or family enjoys a maximum of privacy, as well as brilliant views. As a result, each apartment will have natural light and fresh air.
The project features 30+ amenities including Gymnasium, Swimming Pool, Children’s Play Area, Clubhouse, Garden, Sports Courts, Security and many more.
Birla Estates has delivered many residential projects successfully across Bangalore. It has many ongoing projects across the city. It is well known for their “quality of construction” and on time delivery.
To know more about Birla Vanya and the developer read below for detailed review and experts analysis.
Birla Vanya Gallery

Birla Vanya RERA Status
RERA Number: NA
Birla Vanya Highlights
Project Location
Unit Types
Price Range
Total Project Area
Size Variants
Total Units
No. of Towers & Floors
Construction Status
Possession Date
Birla Vanya Location
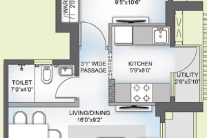
Birla Vanya Floor Plans & Master Plan
Birla Vanya Review By Experts
Advantages
-
Schools, hospitals, grocery stores, malls, ATMs, banks and metro station are located nearby.
-
Due to its access to all desirable social infrastructure, the project offers good future appreciation prospects.
Disadvantages
-
The growth rate of infrastructure development is slow-moving, along with poor road maintenance.
Connectivity
Investment
Personal Use
Area Development
Birla Vanya Price
| Unit Type | Size (sq.ft) | Price (All Inclusive*) | Get Lowest Price* |
|---|---|---|---|
| 1 BHK | 450 – 448 | Rs. 60.99 – Rs. 55.99 Lacs Onwards | Click Here |
| 2 BHK | 612 – 726 | Rs. 88.84 – Rs. 96.99 Lacs Onwards | Click Here |
| 4 BHK | 1315 | Rs. 1.90 Crore Onwards | Click Here |
Get Complete Costing Details

Birla Vanya Amenities
Birla Estates Review

Birla Estates is the real estate vertical of Century Textiles and Industries Ltd., the over Rs. 8000 crore flagship Company of the B. K. Birla Group of Companies with presence in cement, textiles, rayon yarn, pulp & paper, salt, chemicals and more. Birla Estates will be developing many land parcels that they hold as well as look at joint development/strategic tie-ups across top cities.
We will transform the perception of Indian Real Estate sector by delivering an exceptional experience and creating value, at every level, for every stakeholder.
We will provide an iconic brand experience aligned to our legacy by never compromising on transparency, commitment, quality and superior design.
Frequently Asked Questions About Birla Vanya
Where is Birla Vanya located?
A :- It is located in Kalyan West, Thane.
What type of apartments are available in Birla Vanya?
A :- Studio, 1, 2 & 4 BHK are available in Birla Vanya.
How much is the total area of Birla Vanya?
A :- 21.05 Acres.
How many number of towers are there in Birla Vanya?
A :- NA.



