Godrej Hillside is a latest residential project by Godrej Properties in Baner, Pune. Read on to get Godrej Hillside review, lowest price, floor plan, location, brochure, etc.
It consists of premium apartments in 1, 2 & 3 BHK bedroom configurations.
The Godrej Hillside features 20+ amenities including Gymnasium, Swimming pool, Children’s play area, Clubhouse, Hospital, Badminton Court, 24/7 security and many more.
Godrej Properties is an award winning and one of the top real-estate firms of the country with projects spread across Pune, Bangalore, Mumbai, and Delhi-NCR.
Godrej Hillside Gallery
Legal Review of Godrej Hillside
RERA Number: NA
Godrej Hillside Highlights
Project Location
Unit Types
Price Range
Total Project Area
Size Variants
Total Units
No. of Towers & Floors
Construction Status
Possession Date
Godrej Hillside Location
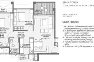
Godrej Hillside Floor Plans & Master Plan
Godrej Hillside Review By Experts
Advantages
-
Godrej Properties is one of India’s leading real estate company with 29 Years of rich experience.
-
Schools, hospitals, grocery stores, malls, ATMs, and banks are located nearby.
-
Due to its closeness to major IT parks, along with access to all desirable social infrastructure, Godrej Hillside offers good future appreciation prospects.
Disadvantages
-
The growth rate of infrastructure development is slow-moving, along with poor road maintenance.
-
Traffic congestion is also a perennial issue during the peak hours but this is bound to ease, with the upcoming developments.
Connectivity
Investment
Personal Use
Area Development
Godrej Hillside Magnifique Price
| Unit Type | Size (sq.ft) | Price (All Inclusive*) | Get Lowest Price* |
|---|---|---|---|
| 1 BHK | 462 | Rs. 41 Lacs Onwards | Click Here |
| 2 BHK | 680 – 691 | Rs. 61 Lacs Onwards | Click Here |
| 3 BHK | 878 | Rs. 78 Lacs Onwards | Click Here |
Get Complete Costing Details

Godrej Hillside Amenities
About Godrej Properties

29 Years of Experience | 84 Total Projects
Godrej Properties brings the Godrej Group philosophy of innovation, sustainability, and excellence to the real estate industry. Each Godrej Properties development combines a 119–year legacy of excellence and trust with a commitment to cutting-edge design and technology. Godrej Properties is currently developing residential, commercial and township projects spread across approximately 11.89 million square meters in 12 cities.
In the last 3 years, Godrej Properties has received over 150 awards and recognitions, including the “Real Estate Company Of The Year” at the Construction Week India Awards 2015, ‘Golden Peacock Award for Sustainability’ for the year 2015 by Institute Of Directors (IOD), “Most Reliable Builder for 2014” at the CNBC AWAAZ Real Estate Awards 2014, “Innovation Leader in Real Estate” award at the NDTV Property Awards 2014 and “Popular Choice – Developer of the Year” award by ET NOW in 2013.
Frequently Asked Questions About Godrej Hillside
Where is Godrej Hillside located?
A :- It is located in Baner, Pune.
What type of apartments are available in Godrej Hillside?
A :- 1, 2 & 3 BHK Apartments are available in Godrej Hillside.
How much is the total area of Godrej Hillside?
A :- 3.4 Acres.
How many number of towers are there in Godrej Hillside?
A :- 3 Towers G + 23 Floors.













