Godrej Park Retreat is a latest residential township project by Godrej Properties in Sarjapur Road, Bangalore. Read on to get Godrej Park Retreat review, lowest price, floor plan, location, brochure, etc.
It consists of premium apartments in 1, 2 & 3 bedroom configurations.
The Godrej Park Retreat features amenities including Gymnasium, Swimming pool, Children’s play area, Clubhouse, Hospital, Badminton Court, 24/7 security, and many more.
Godrej Properties is an award-winning and one of the top real estate firms of the country with projects spread across Ahmedabad, Pune, Bangalore, Mumbai, Delhi-NCR, Hyderabad and Kolkata.
Godrej Park Retreat Gallery
Legal Review of Godrej Park Retreat
RERA Number: NA
Godrej Park Retreat Highlights
Project Location
Unit Types
Price Range
Total Project Area
Size Variants
Total Units
No. of Towers & Floors
Construction Status
Possession Date
Godrej Park Retreat Location
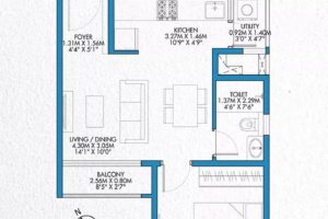
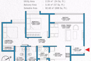
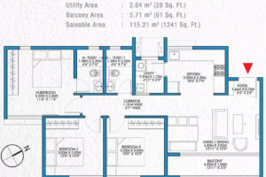
Godrej Park Retreat Floor Plans & Master Plan
Godrej Park Retreat Review By Experts
Advantages
-
Godrej Properties is one of India’s leading real estate company with 29 years of rich experience.
-
It was the 2nd choice of buyers countrywide out of the total 500 developers nationally in Track2Realty’s 2018 Consumer Confidence Report.
-
Schools, hospitals, grocery stores, malls, ATMs, banks and metro station are located nearby.
-
Due to its access to all desirable social infrastructure, Godrej Park Retreat offers good future appreciation prospects.
Disadvantages
-
The growth rate of infrastructure development is slow-moving, along with poor road maintenance.
Connectivity
Investment
Personal Use
Area Development
Godrej Park Retreat Price
| Unit Type | Size (sq.ft) | Price (All-Inclusive*) | Get Lowest Price* |
|---|---|---|---|
| 1 BHK | 608 | Rs. 44.9 Lacs Onwards | Click Here |
| 2 BHK | 998 | Rs. 69.9 Lacs Onwards | Click Here |
| 3 BHK | 1241 | SOLD OUT | Click Here |
Get Complete Costing Details

Godrej Park Retreat Amenities
Godrej Properties Review

29 Years of Experience | 84 Total Projects | 52 Ongoing Projects
Godrej Properties is one of the most potential real estate developers in India, headquarters of which stand located in Mumbai, Maharashtra. Founded and carried forward majorly by the Godrej Family, the firm found its existence in the year 1897 primarily because of Ardeshir Godrej and Pirojsha Burjorji Godrej.
Its primary focus being the real estate and residential establishments, the company has a diverse history of serving the people with its excellent services in manufacturing consumer products, industrial engineering, electrical appliances, smart and efficient home furniture, security services and also agricultural care products.
The company has witnessed significant exposure in terms of its achievements of being the second most publicly trusted brand of India having a extremely huge annual turnover of more than 15 billion.
Having earned the tag of one of the most reliable firms, Godrej has diversified its reach to more than 1.1 Billion consumers all over the world.
Godrej Properties have set a great benchmark in the real estate market having its key markets spread in all parts of the country including, Ahmedabad, Pune, Bangalore, Mumbai, Delhi-NCR, Hyderabad and Kolkata as well. Having a philanthropic arm in constructions and developmental projects, the firm has earned its fame through its many prestige projects.
The Godrej Properties have shown their dedication towards environmental protection and sustainability and kept the fact in mind while designing and constructing many of their prestige developmental projects. Most of the projects of built by them have been rated one of the best in being energy and environmentally efficient,being offered LEED platinum certifications.
Godrej Garden City, a prestige residential developmental project was selected as one of the only 16 residential townships all over the world to collaborate with the Clinton Foundation to fulfill their goal to achieve a positive climatic environment through development of “green” and “clean” township projects.
Godrej Properties have not only created prestige projects but they have been ensuring customer satisfaction for ages since their inception which is why they have been ranked as number one in the real estate business and have also fixed its position in the top 50 construction companies from over the world by the Great places of work Institute.










