Kolte Patil 24K Stargaze is a latest residential project by Kolte Patil in Bavdhan, Pune. Read on to get Kolte Patil 24K Stargaze review, lowest price, floor plan, location, brochure, etc.
It consists of premium apartments in 3 & 4 BHK bedroom configurations.
The Kolte Patil 24K Stargaze features 20+ amenities including Gymnasium, Swimming pool, Children’s play area, Clubhouse, Hospital, Badminton Court, 24/7 security and many more.
Kolte Patil is an award winning and one of the top real-estate firms of the country with projects spread across Pune, Bangalore, Mumbai, and Delhi-NCR.
Kolte Patil 24K Stargaze Gallery
Legal Review of Kolte Patil 24K Stargaze
RERA Number: NA
Kolte Patil 24K Stargaze Highlights
Project Location
Unit Types
Price Range
Total Project Area
Size Variants
Total Units
No. of Towers & Floors
Construction Status
Possession Date
Kolte Patil 24K Stargaze Location
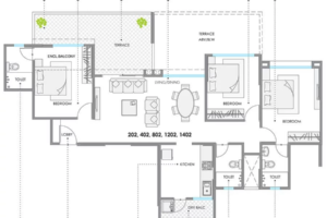
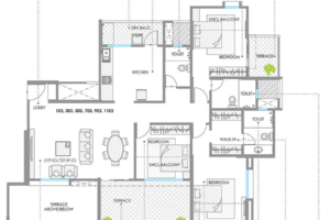
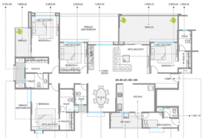
Kolte Patil 24K Stargaze Floor Plans & Master Plan
Kolte Patil 24K Stargaze Review By Experts
Advantages
-
Kolte Patil is one of India’s leading real estate company with 32 Years of rich experience.
-
Schools, hospitals, grocery stores, malls, ATMs, and banks are located nearby.
-
Due to its closeness to major IT parks, along with access to all desirable social infrastructure, Kolte Patil 24K Stargaze offers good future appreciation prospects.
Disadvantages
-
The growth rate of infrastructure development is slow-moving, along with poor road maintenance.
-
Traffic congestion is also a perennial issue during the peak hours but this is bound to ease, with the upcoming developments.
Connectivity
Investment
Personal Use
Area Development
Kolte Patil 24K Stargaze Magnifique Price
| Unit Type | Size (sq.ft) | Price (All Inclusive*) | Get Lowest Price* |
|---|---|---|---|
| 3 BHK | 1256 | Rs. 1.37 Crore Onwards | Click Here |
| 3 BHK | 1464 | Rs. 1.56 Crore Onwards | Click Here |
| 3 BHK | 1510 – 1582 | Rs. 1.68 Crore Onwards | Click Here |
| 4 BHK | 1750 – 2382 | Rs. 2.49 Crore Onwards | Click Here |
Get Complete Costing Details

Â
Kolte Patil 24K Stargaze Amenities
About Kolte Patil

32 Years of Experience | 118 Total Projects
Kolte Patil Developers Ltd. (KPDL) has been on the forefront of developments with its trademark philosophy of ‘Creation and not Construction’. With over 8 million square feet of landmark developments across Pune and Bengaluru, KPDL has created a remarkable difference by pioneering new lifestyle concepts, leveraging cutting edge technology and creating insightful designs. This iconic journey of success has been inspired by its dynamic leadership, passionate team of experts, league of stakeholders and its ever growing quest for excellence.
KPDL’s extensive spectrum of creations spans across multiple segments like residential projects, business and retail properties, IT Parks, Integrated Townships and Hospitality Infrastructure. Its core business operations feature varied aspects of construction business, such as location identification, acquisition, project planning, designing and development.
Over the period of around two decades, we have been acknowledged for quality, commitments, integrity, timely execution, innovative technology up gradations and greater value propositions. With every creation, KPDL has always been endeavoured to stand by these attributes which define its brand promise.
Frequently Asked Questions About Kolte Patil 24K Stargaze
Where is Kolte Patil 24K Stargaze located?
A :- It is located in Bavdhan, Pune.
What type of apartments are available in Kolte Patil 24K Stargaze?
A :- 3 & 4 BHK Apartments are available in Kolte Patil 24K Stargaze.
How much is the total area of Kolte Patil 24K Stargaze?
A :- 18 Acres.
How many number of towers are there in Kolte Patil 24K Stargaze?
A :- 5 Towers 2P + 11 Floors.















