Raheja Pebble Bay is a latest residential project by Advantage Raheja in Koramangala, Bangalore. It consists of apartments in 2, 3 & 4 BHK configurations.
Every apartment is Vaastu compliant. The apartment have been consciously sized for convenient family living, the room dimensions are sensible and designed to maximize usable area while minimizing circulation space.
The towers and apartments in Raheja Pebble Bay are designed intentionally so that every home owners or family enjoys a maximum of privacy, as well as brilliant views. As a result, each apartment will have natural light and fresh air.
The project features 30+ amenities including Gymnasium, Swimming Pool, Children’s Play Area, Clubhouse, Garden, Sports Courts, Security and many more.
Advantage Raheja has delivered many residential projects successfully across Bangalore. It has many ongoing projects across the city. It is well known for their “quality of construction” and on time delivery.
To know more about Raheja Pebble Bay and the developer read below for detailed review and experts analysis.
Raheja Pebble Bay Gallery
Raheja Pebble Bay RERA Status
RERA Number: NA
Raheja Pebble Bay Highlights
Project Location
Unit Types
Price Range
Total Project Area
Size Variants
Total Units
No. of Towers & Floors
Construction Status
Possession Date
Raheja Pebble Bay Location
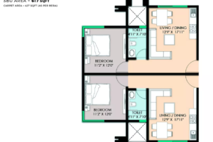
Raheja Pebble Bay Floor Plans & Master Plan
Raheja Pebble Bay Review By Experts
Advantages
-
Schools, hospitals, grocery stores, malls, ATMs, and banks are located nearby.
-
Due to its access to all desirable social infrastructure, the project offers good future appreciation prospects.
Disadvantages
-
The growth rate of infrastructure development is slow-moving, along with poor road maintenance.
-
Traffic congestion is also a perennial issue during the peak hours but this is bound to ease, with the upcoming developments.
Connectivity
Investment
Personal Use
Area Development
Raheja Pebble Bay Magnifique Price
| Unit Type | Size (sq.ft) | Price (All Inclusive*) | Get Lowest Price* |
|---|---|---|---|
| 2 BHK | 1235 | Rs. 1.31 Crore Onwards | Click Here |
| 3 BHK (Medium) | 1815 | Rs. 1.92 Crore Onwards | Click Here |
| 3 BHK (Large) | 2070 | Rs. 2.19 Crore Onwards | Click Here |
| 4 BHK | 2495 | Rs. 2.65 Crore Onwards | Click Here |
Get Complete Costing Details

Raheja Pebble Bay Amenities
About Advantage Raheja

At Advantage Raheja Developers Pvt Ltd, with over 35 years of hands on experience in implementing project after project and hallmark resilience to make things happen even under strict timelines. We are inspired and motivated to bring about a new wave into the realty business. At Raheja Developers Pvt Ltd our focus is innovative that is practical ever beneficial and long standing.
Advantage Raheja Builders Pvt Ltd is one of the well known builders in India undertaking successful development of many luxurious hospitality projects in Bangalore, Pune, Hyderabad and Mumbai in India. Advantage Raheja Builders Pvt Ltd also plans to extend its foray into retail, 5 star deluxe hotels and more with residential apartments.
Frequently Asked Questions About Raheja Pebble Bay
Where is Raheja Pebble Bay located?
A :- It is located in Koramangala, Bangalore.
What type of apartments are available in Raheja Pebble Bay?
A :- 2, 3 & 4 BHK Apartments are available in Raheja Pebble Bay.
How much is the total area of Raheja Pebble Bay?
A :- 6.1 Acres.
How many number of towers are there in Raheja Pebble Bay?
A :- 3 Blocks G + 15 Floors.








