Shriram Hebbal One is a latest residential project by Shriram Properties in Hebbal, Bangalore. It consists of apartments in 3 BHK configurations.
Every apartment is Vaastu compliant. The apartment have been consciously sized for convenient family living, the room dimensions are sensible and designed to maximize usable area while minimizing circulation space.
The towers and apartments in Shriram Hebbal One are designed intentionally so that every home owners or family enjoys a maximum of privacy, as well as brilliant views. As a result, each apartment will have natural light and fresh air.
The project features 30+ amenities including Gymnasium, Swimming Pool, Children’s Play Area, Clubhouse, Garden, Sports Courts, Security and many more.
Shriram Properties has delivered many residential projects successfully across Bangalore. It has many ongoing projects across the city. It is well known for their “quality of construction” and on time delivery.
To know more about Shriram Hebbal One and the developer read below for detailed review and experts analysis.
Shriram Hebbal One Gallery
Shriram Hebbal One RERA Status
RERA Number: PRM/KA/RERA/1251/309/PR/171013/001159
Shriram Hebbal One Highlights
Project Location
Unit Types
Price Range
Total Project Area
Size Variants
Total Units
No. of Towers & Floors
Construction Status
Possession Date
Shriram Hebbal One Location
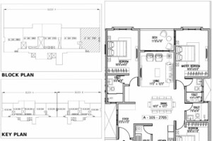
Shriram Hebbal One Floor Plans & Master Plan
Shriram Hebbal One Review By Experts
Advantages
-
Schools, hospitals, grocery stores, malls, ATMs, and banks are located nearby.
-
Due to its access to all desirable social infrastructure, the project offers good future appreciation prospects.
Disadvantages
-
The growth rate of infrastructure development is slow-moving, along with poor road maintenance.
-
Traffic congestion is also a perennial issue during the peak hours but this is bound to ease, with the upcoming developments.
Connectivity
Investment
Personal Use
Area Development
Shriram Hebbal One Magnifique Price
| Unit Type | Size (sq.ft) | Price (All Inclusive*) | Get Lowest Price* |
|---|---|---|---|
| 3 BHK + 3T | 1685 | Rs. 1.09 Cr Onwards | Click Here |
| 3 BHK + 3T | 2475 | Rs. 1.61 Cr Onwards | Click Here |
Get Complete Costing Details

Shriram Hebbal One Amenities
About Shriram Properties

Shriram Properties is part of the Shriram Group of companies, an INR 90,000 crore financial conglomerate with a strong presence across South India.
Shriram Properties was established in 1995 with its headquarters in Bengaluru and is a leading real estate developer with projects in Bengaluru, Chennai, Kolkata, Coimbatore, and Vizag.
More than 20,000 sq.ft of built-up space, with an additional 12 million sq.ft. close to completion and 45.85 million sq.ft still under development by Shriram Properties. Their projects include apartments, villas, and villaments.
Frequently Asked Questions About Shriram Hebbal One
Where is Shriram Hebbal One located?
A :- It is located in Hebbal, Bangalore.
What type of apartments are available in Shriram Hebbal One?
A :- 3 BHK Apartments are available in Shriram Hebbal One.
How much is the total area of Shriram Hebbal One?
A :- 1 Acres.
How many number of towers are there in Shriram Hebbal One?
A :- NA.







