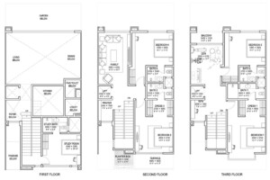
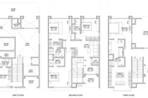
Sobha Crystal Meadows is the latest residential project by Sobha Limited in Sarjapur, Bangalore. It consists of row houses in 4 BHK configurations.
Every row houses is Vaastu compliant. The row houses has been consciously sized for convenient family living, the room dimensions are sensible and designed to maximize usable area while minimizing circulation space.
The row houses in Sobha Crystal Meadows are designed intentionally so that every home owner or family enjoys a maximum privacy, as well as brilliant views. As a result, each row houses will have natural light and fresh air.
The project features 30+ amenities including a Gymnasium, Swimming Pool, Children’s Play Area, Clubhouse, Garden, Sports Courts, Security, and many more.
Sobha Limited has delivered many residential projects successfully across Bangalore. It has many ongoing projects across the city. It is well known for its “Quality of Construction” and On-time Delivery.
To know more about Sobha Crystal Meadows and the developer, read below for a detailed review and expert analysis.
Sobha Crystal Meadows Highlights
Project Location
Unit Types
Price Range
Total Project Area
Size Variants
Total Units
No. of Towers & Floors
Construction Status
Possession Date
Sobha Crystal Meadows Gallery

Sobha Crystal Meadows RERA Approval
RERA Number: NA
Sobha Crystal Meadows Location
Sobha Crystal Meadows Price
| Unit Type | Size (sq.ft) | Price (All Inclusive*) | Get Lowest Price* |
|---|---|---|---|
| 4 BHK | 4284 – 4814 | Rs. 10.6 Cr Onwards* | Click Here |
Get Complete Costing Details

Sobha Crystal Meadows Floor Plans & Master Plan
Sobha Crystal Meadows Amenities
Sobha Crystal Meadows Review By Experts
Advantages
-
Schools, hospitals, grocery stores, malls, ATMs, and banks are located nearby.
-
With every necessity accessible in the vicinity, along with easy reach to all desirable social infrastructure, the project offers good future appreciation prospects.
Disadvantages
-
The growth rate of infrastructure development in the locality is slow-moving, along with poor road maintenance.
-
Traffic congestion is also a perennial issue during the peak hours but this is bound to ease, with the upcoming developments.
Connectivity
Investment
Personal Use
Area Development
About SOBHA Limited

Founded in the year 1995, Sobha Limited is one of the largest real estate development company in India. It’s a Rs. 22 billion company based out of Bangalore and having projects spread across 13 states and 24 cities.
Sobha Limited is primarily focused on the development of residential and contractual projects. The residential projects range from villas and row houses to plotted development, presidential apartments, premium, and super premium apartments. Every Sobha project comes equipped with every major amenity including shopping complex, clubhouse, and swimming pool.
Presently, almost 35 residential projects are under construction aggregating to 27.32 million sq. ft. of space under development. 18.90 million sq. ft. of saleable space in addition to ongoing contractual projects adding up to almost 9.50 million square feet of area.
Sobha has constructed a wide array of structures for prestigious corporate clients most noteworthy being Dell, Institute of Public Enterprises (IPE), Taj Group, Hotel Leela Ventures, Infosys, Bosch, HP, Biocon, Timken and more.
Frequently Asked Questions About Sobha Crystal Meadows
Where is Sobha Crystal Meadows located?
A :- It is located in Sarjapur, Bangalore.
What type of row houses are available in Sobha Crystal Meadows?
A :- 4 BHK row houses are available.
How much is the total area of Sobha Crystal Meadows?
A :- 26.6 Acres.
How many number of towers are there in Sobha Crystal Meadows?
A :- NA.




