TATA Primanti is the latest residential project by TATA Realty in Sector 72, Gurgaon. It consists of apartments in 3, 4 & 5 BHK configurations.
Every apartment is Vaastu compliant. The apartment has been consciously sized for convenient family living, the room dimensions are sensible and designed to maximize usable area while minimizing circulation space.
The towers and apartments in TATA Primanti are designed intentionally so that every home owner or family enjoys a maximum privacy, as well as brilliant views. As a result, each apartment will have natural light and fresh air.
The project features 30+ amenities including a Gymnasium, Swimming Pool, Children’s Play Area, Clubhouse, Garden, Sports Courts, Security, and many more.
TATA Realty has delivered many residential projects successfully across Bangalore. It has many ongoing projects across the city. It is well known for its “Quality of Construction” and On-time Delivery.
To know more about TATA Primanti and the developer, read below for a detailed review and expert analysis.
TATA Primanti Highlights
Project Location
Unit Types
Price Range
Total Project Area
Size Variants
Total Units
No. of Towers & Floors
Construction Status
Possession Date
TATA Primanti Gallery
TATA Primanti RERA Approval
RERA Number: NA
TATA Primanti Location
TATA Primanti Price
| Unit Type | Size (sq.ft) | Price (All Inclusive*) | Get Lowest Price* |
|---|---|---|---|
| 3 BHK | 2145 – 2560 | Rs. 4.04 Crore Onwards* | Click Here |
| 4 BHK | 2625 – 3300 | Rs. 4.94 Crore Onwards* | Click Here |
| 4 BHK | 4250 – 5800 | Rs. 8.0 Crore Onwards* | Click Here |
Get Complete Costing Details

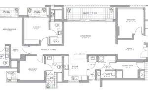
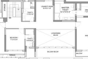
TATA Primanti Floor Plans & Master Plan
TATA Primanti Amenities
TATA Primanti Review By Experts
Advantages
-
Schools, hospitals, grocery stores, malls, ATMs, and banks are located nearby.
-
With every necessity accessible in the vicinity, along with easy reach to all desirable social infrastructure, the project offers good future appreciation prospects.
Disadvantages
-
The growth rate of infrastructure development in the locality is slow-moving, along with poor road maintenance.
-
Traffic congestion is also a perennial issue during the peak hours but this is bound to ease, with the upcoming developments.
Connectivity
Investment
Personal Use
Area Development
About TATA Housing

Since its revival in late 2006, TATA Housing has evolved into one of the fastest growing real estate development companies in India. With the primary business being development of properties in residential, commercial and retail sectors, the company’s operations span across various aspects of real estate development, such as land identification and acquisition, project planning, designing, marketing & sales, project execution, property services and estate.
Today with a strength of over 700 employees, and presence in Mumbai, Lonavala, Vadgaon (near Talegaon), Pune, Ahmedabad, Goa, Gurgaon, Chandigarh, Bengaluru, Chennai, Kolkata and Bhubaneswar; TATA Housing is now in the process of expanding its footprint to other parts of India across tier I and tier II cities. The company has also ventured into foreign markets such as the Maldives and is actively considering markets such as Sri Lanka, and other south asian countries.
The company has received various industry recognitions both in India and internationally for its landmark projects and contribution to the real estate.
Frequently Asked Questions About TATA Primanti
Where is TATA Primanti located?
A :- It is located in Sector 72, Gurgaon.
What type of apartments are available in TATA Primanti?
A :- 3 & 4 BHK apartments are available.
How much is the total area of TATA Primanti?
A :- 36 Acres.
How many number of towers are there in TATA Primanti?
A :- 46 Buildings.







