TATA Rio De Goa a latest residential poject by TATA Housing in Dobolim, Goa. Read on to get TATA Rio De Goa review, lowest price, floor plan, location, brochure, etc.
It consists of premium 2 BHK apartments configurations.
The TATA Rio De Goa features 20+ amenities including Gymnasium, Swimming pool, Children’s play area, Clubhouse, Hospital, Badminton Court, 24/7 security and many more.
TATA Housing is an award winning and one of the top real-estate firms of the country with projects spread across Pune, Bangalore, Mumbai, and Delhi-NCR.
TATA Rio De Goa Gallery
Legal Review of TATA Rio De Goa
RERA Number: NA
TATA Rio De Goa Highlights
Project Location
Unit Types
Price Range
Total Project Area
Size Variants
Total Units
No. of Towers & Floors
Construction Status
Possession Date
TATA Rio De Goa Location
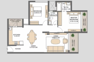
TATA Rio De Goa Floor Plans & Master Plan
TATA Rio De Goa Review By Experts
Advantages
-
TATA Housing is one of India’s leading real estate company with 37 Years of rich experience.
-
Schools, hospitals, grocery stores, malls, ATMs, and banks are located nearby.
-
Due to its closeness to major IT parks, along with access to all desirable social infrastructure, TATA Rio De Goa offers good future appreciation prospects.
Disadvantages
-
The growth rate of infrastructure development is slow-moving, along with poor road maintenance.
-
Traffic congestion is also a perennial issue during the peak hours but this is bound to ease, with the upcoming developments.
Connectivity
Investment
Personal Use
Area Development
TATA Rio De Goa Magnifique Price
| Unit Type | Size (sq.ft) | Price (All Inclusive*) | Get Lowest Price* |
|---|---|---|---|
| 2 BHK | 692 | Rs. 79 Lacs Onwards | Click Here |
| 2 BHK Large | 808 | Rs. 92 Lacs Onwards | Click Here |
| 2 BHK X-Large | 903 | Rs. 96 Lacs Onwards | Click Here |
Get Complete Costing Details

TATA Rio De Goa Amenities
About TATA Housing

37 Years of Experience | 51 Total Projects
Since its revival in late 2006, TATA Housing has evolved into one of the fastest growing real estate development companies in India. With the primary business being development of properties in residential, commercial and retail sectors, the company’s operations span across various aspects of real estate development, such as land identification and acquisition, project planning, designing, marketing & sales, project execution, property services and estate.
Today with a strength of over 700 employees, and presence in Mumbai, Lonavala, Vadgaon (near Talegaon), Pune, Ahmedabad, Goa, Gurgaon, Chandigarh, Bengaluru, Chennai, Kolkata and Bhubaneswar; TATA Housing is now in the process of expanding its footprint to other parts of India across tier I and tier II cities. The company has also ventured into foreign markets such as the Maldives and is actively considering markets such as Sri Lanka, and other south asian countries.
The company has received various industry recognitions both in India and internationally for its landmark projects and contribution to the real estate.
Frequently Asked Questions About TATA Rio De Goa
Where is TATA Rio De Goa located?
A :- It is located in Dobolim, Goa.
What type of apartments are available in TATA Rio De Goa?
A :- 2 BHK are available in TATA Rio De Goa.
How much is the total area of TATA Rio De Goa?
A :- 4.82 Acres.
How many number of towers are there in TATA Rio De Goa?
A :- 14 Towers B + G + 8 Floors.













